TRANE TR200 OPERATING INSTRUCTIONS MANUAL Pdf Download ManualsLib

Trane Tr200 Instruction Manual. TRANE LONWORKS TR200 INSTRUCTION MANUAL Pdf Download ManualsLib TR200 E-Frame Operating Guide Literature Order Number BAS-SVX087A-EN Summary of Contents for Trane TR200 Page 1 Operating Instructions TR200 New D-Frame, 110-400 kW SAFETY WARNING Only qualified personnel should install and service the equipment

Trane Tr200 Users Manual BAS SVX49A EN 08/12/2011 Vertical Bypass/Non
Trane Tr200 Users Manual BAS SVX49A EN 08/12/2011 Vertical Bypass/Non from usermanual.wiki

DC Drives TRANE TR200 Instruction Manual (205 pages) DC Drives Trane TR200 Operator's Manual 5.6 Remote Programming with Trane Drive Utility (TDU) 48 6 Application Examples 49 6.1 Introduction 49 6.2 Application Examples 49 7.

Trane Tr200 Users Manual BAS SVX49A EN 08/12/2011 Vertical Bypass/Non

Instruction Manual November 2009 TR200 BAS-SVX25A-EN BAS-SVX25B-EN Trane has a policy of continous product and product data improvement and reserves the right to change design and specifications without notice TR200 E-Frame Operating Guide Literature Order Number BAS-SVX087A-EN Installation, Operation, and Maintenance manuals and/or the literature included with the TR200 VFD

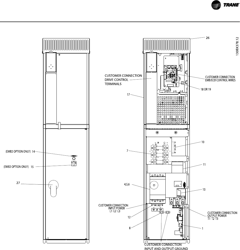
TRANE TR200 OPERATING INSTRUCTIONS MANUAL Pdf Download ManualsLib. Get help installing & operating Trane's TR200 Option Panel with AI-powered Q&A and PDF guide For help selecting the proper parts for this work, refer to General Service Bulletin, VFD Selection List for TR1 to TR200 (PART

Trane Tr200 Vfd Manual. The installation, starting up, and servicing of heating, ventilating, and air-conditioning equipment can be hazardous and requires specific knowledge and training. www.trane.com For more information, contact your local Trane office or e-mail us at comfort@trane.com Literature Order Number BAS-SVX25A-EN